ブリッジブログ Bridge blog
【賃貸】全居室6帖以上のゆとりある7Kの貸家
2026.04.26
全居室6帖以上のゆとりある7Kの貸家をご紹介させていただきます 😀
駐車2台可(カーポート付)でファミリーにもおすすめの物件です 😉
≪募集条件≫
月額賃料:8.8万円
敷金:1ヶ月
礼金:1ヶ月
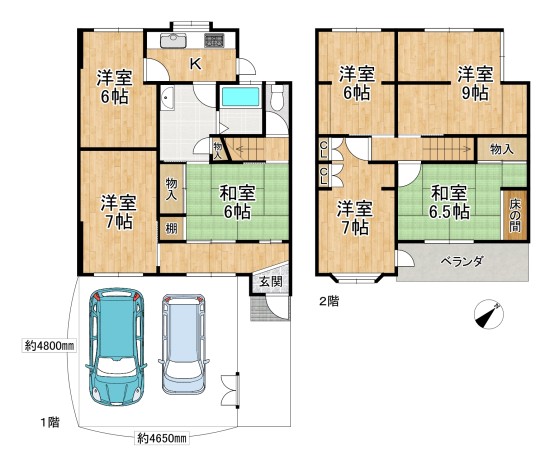
【間取り】

部屋数豊富な7Kの間取り
【外観】

駐車2台可能(カーポート付)
【1階室内】

【2階室内】



【洗面・浴室・トイレ】

窓付きで自然光が入る明るいキッチン 換気もしやすく快適です



スーパー・コンビニまで徒歩10分圏内で生活便利な住環境です 😉
■周辺環境■
・フレスコ勧修店(徒歩9分)
・コープ山科新十条店(徒歩10分)
・マツヤスーパービア店(徒歩11分)
・ローソン山科勧修寺泉玉町店(徒歩6分)
・ダックス山科勧修寺店(徒歩12分)
・西野山保育園(徒歩1分)
周辺環境と併せてぜひ一度現地をご確認ください 
お問い合わせお待ちしております 
■物件概要■
所在:京都市山科区勧修寺柴山
交通:地下鉄東西線「小野」駅 徒歩19分/地下鉄東西線「椥辻」駅 徒歩20分
延床面積:114.01㎡(34.48坪)
建物構造:鉄筋コンクリート造2階建
築年月:1969(昭和44)年3月
※お問い合わせのタイミングによっては成約済、商談中、あるいは条件変更となっている場合があります。
あしからずご了承ください。



